
Ingen betongplatta krävs, vilket innebär att en enkel grusbädd räcker. Därmed sparar du både tid och pengar på markarbete.

Det är inte bara en bostad, utan även ett konstverk på tomten. Detta ger en unik stolthet samt en estetisk upplevelse som annars är svår att få med traditionell panel och sadeltak.

Genom att välja våra hus slipper du stressen och dammet av en byggarbetsplats. Resultatet blir omedelbar tillfredsställelse när huset lyfts på plats, du kopplar in el och vatten, och fem minuter senare kan du brygga ditt första kaffe.
FI Homes – först i Norden med fysiska kapselhus i egen design, kom och se dem i verkligheten!
Boka in dig för visning av de två första kapselhus i S70-serien – moderna, fullt utrustade modulhus byggda för nordiskt klimat för visning i Göteborg. Passar fint som attefallshus om du bor utanför detaljplanen!
Fakta i korthet:
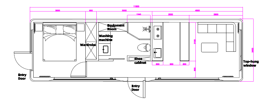
Boyta: 38,7 kvm
Mått: 11,5 × 3,4 × 3,3 m
Vikt: 9,5 ton
Snözon 9 – klarar hela Norden med god marginal
Planlösning: Sovrum, vardagsrum, kök & badrum
Stora 3-glasfönster på fram- och sidor
Golvvärme & klimatanläggning
Inbyggd biosalong och premiumdetaljer
Husen levereras färdiga att placeras på din tomt – koppla bara in el, vatten och avlopp. Ingen betongplatta krävs, vilket innebär att en enkel grusbädd räcker. Därmed sparar du både tid och pengar på markarbete.
Lanseringspris: 795 000 kr Ordinariepris: 845 000kr
Inkl. vitvaror & möbler
📍 Showroom i Billdal, Göteborg, Sverige – öppnar i slutet mars 2026
Kom, kläm och känn på kvaliteten. Vi bjuder på fika











