A50 Attefallshus – lyxig boendeupplevelse & smarta funktioner

A50 Attefallshus – Perfekt attefallshus

Upptäck A50 Galactic Series – Framtidens boende är här

Välkommen till en ny dimension av Attefallshus lyx. A50 från vår prestigefyllda Galactic Series är inte bara ett hus – det är ett arkitektoniskt mästerverk designat för den moderna människan. Här möts banbrytande design och hållbar innovation i en perfekt symbios.

Varför Attefallshus A50 är det självklara valet:

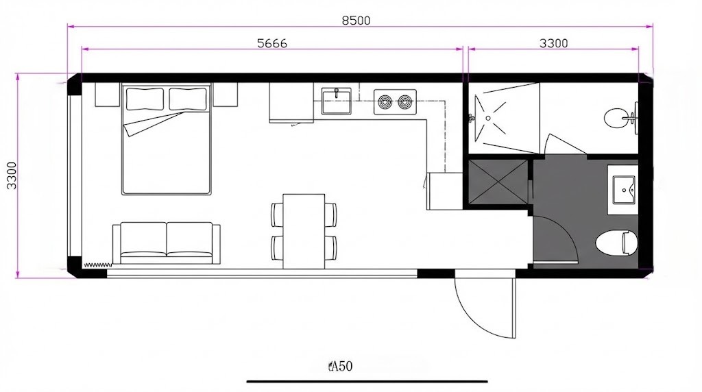
  • Rymd utöver det vanliga: Tack vare en generös bredd och höjd på 3,3 meter och en längd på 8,5 meter erbjuder A50 en luftig volym och rörelsefrihet som du sällan ser i kompakta boenden.
  • Intelligent lyx: Med integrerad AI-styrning och smarta lösningar anpassar sig hemmet efter dina behov, medan de energieffektiva systemen sänker dina kostnader.
  • Hållbarhet i varje detalj: Byggt med högkvalitativa, miljövänliga material som garanterar både lång livslängd och ett minimalt klimatavtryck.

Med sina 28 kvadratmeter är A50 den optimala lösningen för dig som drömmer om en lyxig gästsvit, ett modernt semesterboende eller en stilfull Attefallshus. Levereras nyckelfärdig (8 ton) för snabb installation – din framtid väntar.

Pris: 670 000kr nyckelfärdigt och delmöblerat

Upptäck A50:s unika egenskaper.

Attefallshus A50 – Horisontellt optimerad premium kompaktboendelösning

A50: Den intelligenta enplansvillan – Där arkitektonisk innovation möter maximal avkastning

A50 sätter en ny standard för kompakt lyx genom avancerad horisontell rymdoptimering. På 28 välplanerade kvadratmeter förenas industriell precision med en sofistikerad estetik, skapad för att erbjuda en exceptionell boendemiljö för 2–4 personer. Med globala certifieringar som CE, ISO9001 och TUV, är detta en framtidssäkrad investering som levererar högsta kvalitet i varje detalj.

För den professionella aktören representerar A50 en nyckelfärdig lösning med minimal ledtid och maximal flexibilitet.

  • Optimerad ROI: Tack vare den korta installationstiden och den höga prefabriceringsgraden möjliggörs en snabbare etablering av allt från exklusiva resort-anläggningar till urbana ”infill”-projekt.
  • Stark miljöprofil: Med en konstruktion bestående av 90 % återvinningsbart material och en energiförbrukning som är 45 % lägre än konventionella alternativ, möter A50 framtidens strikta miljökrav.
  • Minimalt underhåll: Chassit i varmförzinkat stål och fasadpanelerna i flygklassad aluminium med fluorkolbeläggning garanterar en extremt lång livslängd och motståndskraft mot tuffa väderförhållanden.

För Privatpersonen: Kompromisslös komfort och Smart lyx

För dig som söker ett exklusivt gästhus, en modern studio eller ett lyxigt retreat, erbjuder A50 en livsstil utan gränser.

  • Ett intelligent hem: Styr belysning, klimat och media med integrerad AI-röststyrning. Det avancerade systemet för friskluftsåtervinning och luftkonditionering i flera zoner säkerställer ett perfekt inomhusklimat året runt.
  • Termisk excellens: Kombinationen av ett trippelskiktat polyuretansystem och dubbelt Low-E-vakuumglas ger en isoleringsförmåga i världsklass, vilket håller värmen inne på vintern och ute på sommaren.
  • Premiumbadrum & Design: Varje detalj är handplockad – från den smarta toaletten till panoramabalkongen med hållbart WPC-däck. Resultatet är en atmosfär av lugn och exklusivitet.

Nyckelfunktioner:

Hållbart: Industriell varmförzinkad stålram och aluminiumpaneler av flygklass med fluorkarbon-finish.

Håller värmen: Trelagers polyuretansystem och dubbelt Low-E vakuumglas.

Smart: AI-röststyrning och central luftkonditionering (multi-zone) med återvinning av friskluft.

Badrum: Premiumbadrum med smart toalett och tillval av energieffektivt pentry.

Miljövänlig: 45 % minskad energianvändning, 90 % återvinningsbara material och möjlighet till solcellsintegrering.

Konfiguration av A50 (Exteriör & Interiör)

Standardkonfiguration (Konstruktion & Interiör)

1. Huvudstomme | System helt i aluminium, förtjockat seismiskt (jordbävningssäkert) aluminiumkonstruktionssystem

2. Fönster- och dörrsystem med bruten köldbrygga | Inbyggt dubbelt härdat isolerglas med lågemission (LOW-E), standard med insektsnät

3. Värmeisoleringssystem | Högdensitets polyuretanskiva 50 mm + polyuretanskum

4. Ytterväggssystem | Fluorlackerad (brännlackerad) aluminiumplåt av flygplansklass

5. Glasfasadsystem | Vår standarduppbyggnad med dubbelt härdat isolerglas (6+12A+4+12A+6) är framtagen för att möta de högsta kraven i det nordiska klimatet. Detta resulterar i ett glas-U-värde på ca 0,6–0,7, vilket minskar dina uppvärmningskostnader avsevärt.

6. Taksystem | Fiberplatta av bambukol i standardfärg / fluorlackerad aluminiumpanel, U-värde 0,28.

7. Väggsystem | Innerväggsbeklädnad av bambukolfiberplatta / yttre fluorlackerad aluminiumpanel, U-värde 0,26.

8. Golvsystem | Underlag av cementfiberskiva, högkvalitativt vattentätt laminatgolv för inomhusbruk, U-värde 0,28.

9. Brand-/Röklarm | Brandförebyggande genom övervakning av rökkoncentration

10. Frostskyddssystem för vattenrör | Omlindad elektrisk värmekabel (värmeband)

Badrumskonfiguration

1. Toalett | JOMOO smart toalett

2. Tvättställ | Tvättställ av märkeskvalitet

3. Blandare | JOMOO blandare

Utrustningskonfiguration (El & VVS)

1. Intelligent System | Röststyrning för hela huset

2. Elstyrning | GREE / CHINT / OPPLE / Schneider och andra märken

3. Vattenkrets | Fördragna rör för vatten och avlopp samt elmatning

4. Sovrumsbelysning | Standard med OPPLE LED-downlight (tre färger)

5. Stämningsbelysning sovrum | Övre och nedre LED-list med monokromt varmt ljus, mellersta LED-list med monokromt vitt ljus

6. Badrumsbelysning | Integrerad takbelysning ovanför tvättställ/toalett

7. Utvändig listbelysning | Standard med OPPLE LED-downlight (tre färger)

8. Fasadbelysning balkong (Wall Washer) | Flexibel flerfärgad LED-list i silikon

9. Värme och Kyla (Inverter AC) | GREE central luftkonditionering 1,5 hk, 2 enheter

10. Smart dörrlås | Intelligent vattentät åtkomstkontroll

11. Vattenberedare | Haier intelligent varmvattenberedare med tank

Gardinsystem

1. Gardiner | Elektriska gardiner

2. Integrerad kontrollpanel | Kortaktiverad ström, integrerad ljusstyrning, intelligent röststyrningsfunktion

3. Elektrisk gardinskena | Metallkonstruktion, slitstark, med nylonhjul

Extra utrustat med:

  • Golvvärme
  • Tvättmaskin
  • Bioprojektor + motordriven bioduk
  • Köksskåp
  • Köksfläkt
  • Diskho
  • Kylskåp
  • Spis
  • 3 glasat isolerfönster
  • Sko skåp
  • Dubbelsäng

.

Utforska Attefallshus A50:s innovativa design.

Byggd på kvalitet, stödd av certifieringar.

Detta avsnitt lyfter fram våra CE-, ISO9001- och TUV-certifikat, avancerade säkerhetsfunktioner och branschledande erkännanden som garanterar kvalitet och pålitlighet.

CE-certifiering

EU:s CE-märkning garanterar att A50 kapselhus uppfyller alla säkerhets- och miljökrav, vilket säkerställer trygghet för våra kunder.

ISO 9001 Kvalitetsledningssystem

Vår ISO 9001-certifiering bekräftar vårt engagemang för kontinuerlig förbättring och högsta standard i produktionen.

TÜV-certifiering

TÜV:s oberoende granskning säkerställer att A50 uppfyller strikta säkerhets- och miljöstandarder för maximal trygghet.